Mieszkanie na sprzedaż Kraków, Krowodrza, Łobzów, ul. Nowowiejska - Lea

2 pokoje
36.17 m²
22 184,13 zł/m2
3 piętro
HME-MS-6828

802 400 zł

Mieszkanie na sprzedaż
Oferta na wyłączność

Szczegóły oferty

Symbol oferty HME-MS-6828
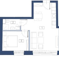
Powierzchnia 36,17 m²
Powierzchnia użytkowa [m2] 36,17 m²
Liczba pokoi 2
Liczba sypialni 1
Rodzaj budynku kamienica
Standard
Piętro 3
Liczba pięter w budynku 4
Garaż miejsce postojowe
Stan lokalu deweloperski
Okna PCV
Instalacje nowe
Balkon jest
Rok budowy 1940
Gaz brak
Woda piec gazowy dwufunkcyjny
Ogrzewanie piec dwufunkcyjny
Winda tak
Liczba wind 1
Usytuowanie jednostronne
Drzwi antywłamaniowe tak
Przystosowania dla niepełnosprawnych tak
Pomieszczenia
Podłogi pokoi wylewka
Rodzaj kuchni aneks kuchenny - połączony z salonem
Podłoga kuchni wylewka
Typ łazienki razem z wc
Glazura łazienki bez glazury
Liczba przedpokoi 1
Powierzchnia przedpokoi 4,3 m2
Joanna Świątek

Joanna Świątek

Pośrednik w obrocie nieruchomościami nr lic. 15641
Nr licencji: 15641

Napisz wiadomość 28 Ofert

Opis nieruchomości

Tuż przy Parku Krakowskim, Placu Nowowiejskim, Miasteczku Studenckim, budynek  po generalnym remoncie, pięknie odrestaurowana klatka schodowa, winda, miejsca postojowe w garazu. 

Mieszkanie usytuowane jest na 4 piętrze, budynku po rewitalizacji, z windą. 
Salon połączony z otwartą kuchnią, osobna sypialnia, przedpokój, łazienka połączona z wc.

Tylko 13 mieszkań w budynku, można zakupić mieszkania w stanie developerskim, lub wykończone, podana cena dotyczy mieszkania w stanie developerskim. Terminu odbioru mieszkania - czerwiec 2026r.
Cena netto=brutto, przy zakupie płacony jest jest podatek pcc.
Zapraszam do zapoznania się z ofertą.

Podobne oferty

Oferta na wyłączność

Mieszkanie na sprzedaż

Kraków, Krowodrza

1 pokoj 30 m2 22 185,43 zł/m2
Oferta na wyłączność
Nowa oferta

Mieszkanie na sprzedaż

Kraków, Krowodrza

2 pokoje 35 m2 18 571,43 zł/m2
Nowa oferta
Bez prowizji

Mieszkanie na sprzedaż

Kraków, Krowodrza

2 pokoje 44 m2 22 623,87 zł/m2
Bez prowizji
Nowa oferta

Mieszkanie na sprzedaż

Kraków, Krowodrza

2 pokoje 32 m2 23 864,63 zł/m2
Nowa oferta

Pośrednik w obrocie nieruchomościami nr lic. 15641

Proszę wprowadzić poprawne imię i nazwisko
Proszę wprowadzić poprawny numer telefonu
Proszę wprowadzić poprawny adres e-mail
Proszę zaznaczyć wymagane zgody
Rozwiąż równanie:
18 5
Niepoprawny wynik