Mieszkanie na sprzedaż Kraków, Krowodrza, Łobzów, ul. Nowowiejska - Lea

1 pokoj
30.20 m²
22 185,43 zł/m2
parter
HME-MS-6796

670 000 zł

Mieszkanie na sprzedaż
Oferta na wyłączność

Szczegóły oferty

Symbol oferty HME-MS-6796
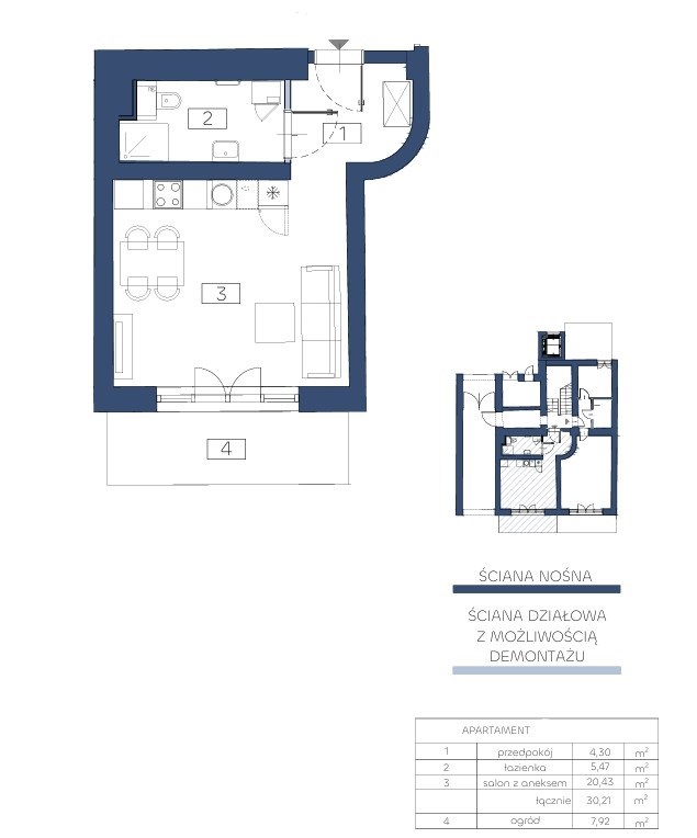
Powierzchnia 30,20 m²
Powierzchnia użytkowa [m2] 30,20 m²
Liczba pokoi 1
Liczba sypialni 1
Rodzaj budynku kamienica
Standard
Piętro parter
Liczba pięter w budynku 4
Garaż miejsce postojowe
Stan lokalu deweloperski
Okna PCV
Instalacje nowe
Rok budowy 1940
Gaz brak
Woda piec gazowy dwufunkcyjny
Ogrzewanie piec dwufunkcyjny
Winda tak
Liczba wind 1
Usytuowanie jednostronne
Drzwi antywłamaniowe tak
Przystosowania dla niepełnosprawnych tak
Pomieszczenia
Powierzchnia pokoi 21 m2
Podłogi pokoi wylewka
Rodzaj kuchni aneks kuchenny - połączony z salonem
Podłoga kuchni wylewka
Typ łazienki razem z wc
Glazura łazienki bez glazury
Liczba przedpokoi 1
Powierzchnia przedpokoi 4,3 m2
Joanna Świątek

Joanna Świątek

Pośrednik w obrocie nieruchomościami nr lic. 15641
Nr licencji: 15641

Napisz wiadomość 16 Ofert

Opis nieruchomości

Tuż przy Parku Krakowskim, Placu Nowowiejskim, Miasteczku Studenckim, budynek  po generalnym remoncie, pięknie odrestaurowana klatka schodowa, winda, miejsca postojowe w garazu. 

Mieszkanie usytuowane jest na parterze, od ulicy, ma powierzchnię 30,21m2, oraz duży,  ogródek - 8m2. Ze względu na położenie i usytuowanie mieszkanie ideanie nadawać się do zamieszkania ale również być wykorzystane na biuro.

Tylko 13 mieszkań w budynku, można zakupić mieszkania w stanie developerskim, lub wykończone, podana cena dotyczy mieszkania w stanie developerskim. Terminu odbioru mieszkania - czerwiec 2026r.

Cena 670 000 zł. Cena netto=brutto, przy zakupie płacony jest jest podatek pcc.
Zapraszam do zapoznania się z ofertą.

Podobne oferty

Mieszkanie na sprzedaż

Kraków, Krowodrza

1 pokoj 32 m2 16 975,31 zł/m2

Mieszkanie na sprzedaż

Kraków, Krowodrza

2 pokoje 32 m2 23 864,63 zł/m2
Nowa oferta

Mieszkanie na sprzedaż

Kraków, Krowodrza

3 pokoje 52 m2 14 711,54 zł/m2
Nowa oferta

Pośrednik w obrocie nieruchomościami nr lic. 15641

Proszę wprowadzić poprawne imię i nazwisko
Proszę wprowadzić poprawny numer telefonu
Proszę wprowadzić poprawny adres e-mail
Proszę zaznaczyć wymagane zgody
Rozwiąż równanie:
27 6
Niepoprawny wynik