Lokal na wynajem Kraków , Krowodrza , Lea

4 pokoje
58.00 m²
102,88 zł/m2
przyziemie piętro
HME-LW-6839

5 967 zł

Lokal na wynajem
Nowa oferta

Szczegóły oferty

Symbol oferty HME-LW-6839
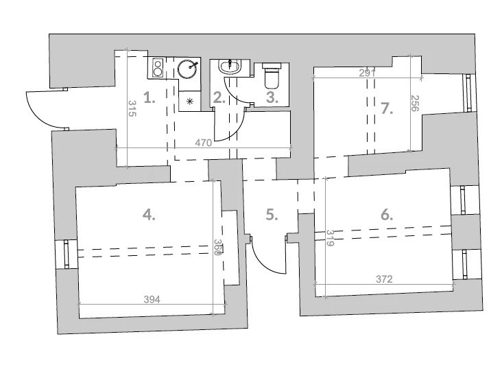
Powierzchnia 58,00 m²
Liczba pokoi 4
Rodzaj budynku kamienica
Standard
Piętro przyziemie
Stan lokalu dobry
Okna PCV
Rodzaj lokalu jednopoziomowy
Przeznaczenie lokalu biurowo - magazynowy, biurowy, handlowo-usługowy, magazynowy, usługowy
Dojazd ASFALTOWA
Otoczenie centrum miasta
Winda tak
Możliwość parkowania płatne
Witryna wystawowa jest
Wejście od ulicy

Opis nieruchomości

Przestronny lokal usługowo-biurowy 58 m² – ul. Lea przy Parku Krakowskim

Do wynajęcia nowoczesny, przestronny lokal usługowo-biurowy o powierzchni 58 m², zlokalizowany przy ul. Juliusza Lea, w bezpośrednim sąsiedztwie Parku Krakowskiego, w jednej z najlepiej skomunikowanych części Krakowa.

Lokal znajduje się w nowoczesnym budynku i dzięki funkcjonalnemu układowi pomieszczeń doskonale sprawdzi się jako biuro, kancelaria, gabinet specjalistyczny, studio projektowe, salon kosmetyczny lub punkt usługowy.

Układ pomieszczeń

Lokal składa się z:

  • czterech niezależnych pomieszczeń,

  • aneksu kuchennego,

  • łazienki,

  • korytarza.

Przemyślany rozkład zapewnia komfortową organizację pracy oraz możliwość wydzielenia kilku stanowisk lub gabinetów.

Standard i wyposażenie

  • powierzchnia 58 m²,

  • ogrzewanie oraz ciepła woda z miejskiej sieci MPEC,

  • jasne i ustawne pomieszczenia,

  • aneks kuchenny wyposażony w lodówkę, płytę indukcyjną, okap oraz zlew,

  • nowoczesny budynek w bardzo dobrej lokalizacji.

Lokalizacja

Lokal znajduje się przy ul. Lea, tuż przy Parku Krakowskim, w doskonałym punkcie komunikacyjnym miasta.

W pobliżu znajdują się:

  • Park Krakowski im. Marka Grechuty oraz Park Jordana – idealne miejsca na spacer i odpoczynek,

  • przystanki tramwajowe i autobusowe Plac Inwalidów oraz ul. Królewska,

  • liczne restauracje, kawiarnie, sklepy oraz punkty usługowe,

  • uczelnie wyższe, w tym AGH,

  • biurowce i centra biznesowe w rejonie ul. Armii Krajowej.

Dojście do Rynku Głównego zajmuje około 10–15 minut pieszo, co dodatkowo podnosi atrakcyjność lokalizacji.

Informacje finansowe

  • czynsz najmu: 5967 zł miesięcznie

  • media: według zużycia (woda i ogrzewanie z sieci miejskiej MPEC)

  • kaucja zwrotna: 5967 zł + przewidywany koszt mediów

  • opłata dla biura w wysokości jednomiesięcznego czynszu 

Lokal dostępny od zaraz.

Zapraszam do kontaktu w celu uzyskania szczegółowych informacji oraz umówienia prezentacji.

Młodszy Doradca Klienta

Proszę wprowadzić poprawne imię i nazwisko
Proszę wprowadzić poprawny numer telefonu
Proszę wprowadzić poprawny adres e-mail
Proszę zaznaczyć wymagane zgody
Rozwiąż równanie:
29 5
Niepoprawny wynik