Mieszkanie na sprzedaż Kraków, Stare Miasto, Bonerowska

2 pokoje
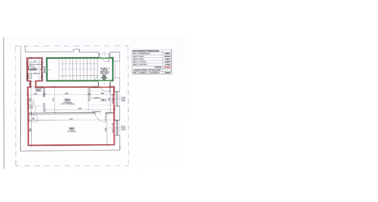
35.00 m²
21 742,86 zł/m2
2 piętro
HME-MS-6881

761 000 zł

Mieszkanie na sprzedaż

Szczegóły oferty

Symbol oferty HME-MS-6881
Powierzchnia 35,00 m²
Liczba pokoi 2
Liczba sypialni 1
Rodzaj budynku kamienica
Technologia budowlana cegła
Standard
Piętro 2
Liczba pięter w budynku 4
Stan lokalu deweloperski
Okna drewniane
Instalacje nowe
Balkon brak
Gaz jest
Woda piec gazowy dwufunkcyjny
Ogrzewanie centralne
Usytuowanie jednostronne
piwnica tak, 5,00 m²
Pomieszczenia
Powierzchnia pokoi 19, 8 m2
Podłogi pokoi wylewka
Rodzaj kuchni aneks kuchenny - połączony z salonem
Podłoga kuchni wylewka
Typ łazienki razem z wc
Joanna Świątek

Joanna Świątek

Pośrednik w obrocie nieruchomościami nr lic. 15641
Nr licencji: 15641

Napisz wiadomość 21 Ofert

Opis nieruchomości

Oferujemy do sprzedaży mieszkanie dwupokojowe w doskonałej lokalizacji, w sercu Krakowa, tuż obok Rynku Głównego.
Odrestaurowana kamienica, zachowana drewniana stolarka.
Duża - 5m2 komórka lokatorska/piwnica w cenie !!!
Mieszkanie na stosunkowo niewielkim metrażu mieści dwa pokoje, z czego jeden połączony z aneksem kuchennym i drugi pokój oddzielny, łazienka z ubikacją i przedpokój.
Mieszkanie znajduje się w budynku oficyny, ciche, spokojne, bezpieczne miejsce.
Idealne do zamieszkania dla jednej osoby, lub pary, doskonałe pod wynajem zarówno długo-, jak i krótkoterminowy.
Mieszkanie w stanie developerskim, istnieje możliwość wykończenia pod klucz.
Centralne ogrzewanie i ciepła woda z pieca gazowego dwufunkcyjnego.
Wszystkie instalacje nowe.
Doskonała lokalizacja, tuż przy krakowskich Plantach, w pobliżu Dworzec Główny, przystanki autobusowe, tramwajowe, Galeria Krakowska, Hala Targowa, Teatr Słowackiego, pełna gama sklepów, usług, lokali gastronomicznych. 
Sprzedaż na rynku pierwotnym, podana cena jest ceną brutto,
NIE MA PODATKU PCC 2%.
Zapraszamy do zapoznania się z ofertą.

Podobne oferty

Bez prowizji

Mieszkanie na sprzedaż

Kraków, Stare Miasto

1 pokoj 34 m2 24 009,53 zł/m2
Bez prowizji
Nowa oferta

Mieszkanie na sprzedaż

Kraków, Stare Miasto

2 pokoje 63 m2 12 642,41 zł/m2
Nowa oferta

Pośrednik w obrocie nieruchomościami nr lic. 15641

Proszę wprowadzić poprawne imię i nazwisko
Proszę wprowadzić poprawny numer telefonu
Proszę wprowadzić poprawny adres e-mail
Proszę zaznaczyć wymagane zgody
Rozwiąż równanie:
13 6
Niepoprawny wynik