Dom na sprzedaż Czernichów, Przeginia Duchowna, Rubinowa

5 pokoi
0,00 zł/m2
HME-DS-6783

880 000 zł

Dom na sprzedaż
Nowa oferta

Szczegóły oferty

Symbol oferty HME-DS-6783
Powierzchnia 0,00 m²
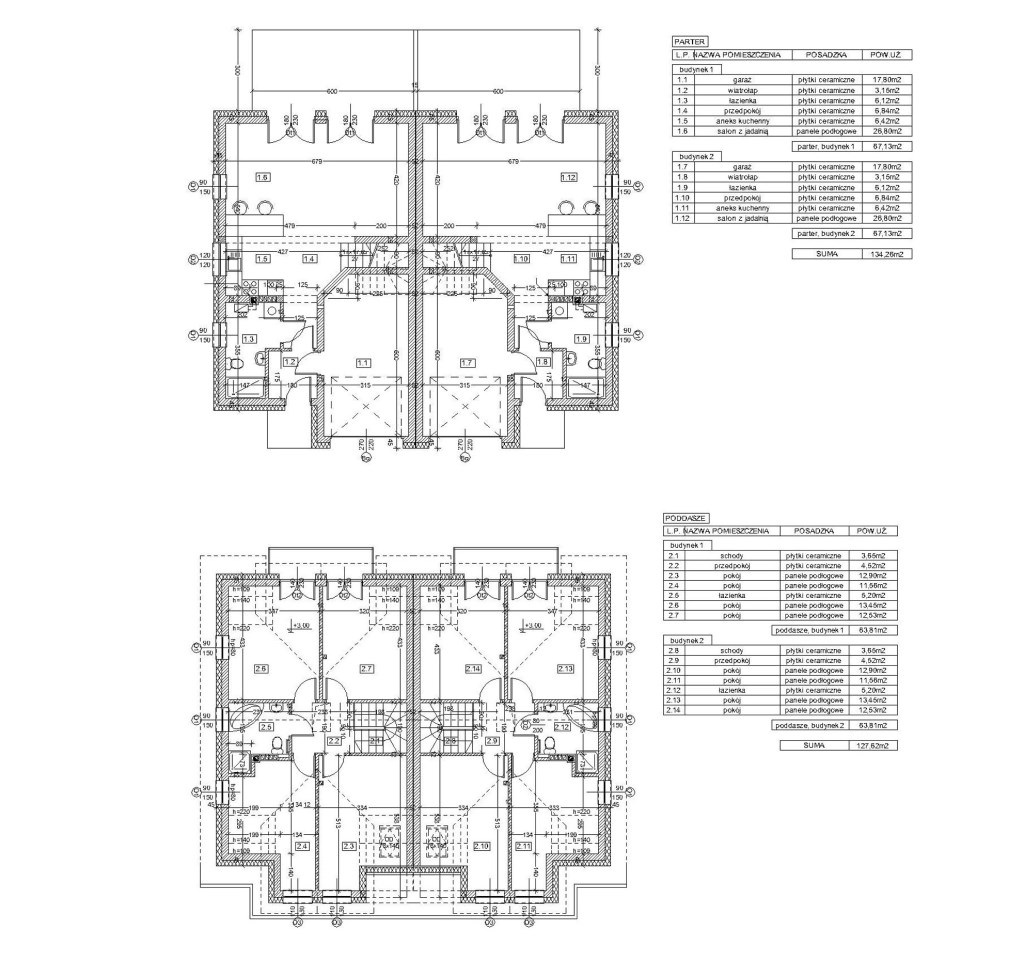
Powierzchnia użytkowa [m2] 131,00 m²
Powierzchnia działki [m2] 507 m²
Liczba pokoi 5
Rodzaj domu bliźniak
Technologia budowlana pustak ceramiczny
Liczba pięter w budynku 1
Garaż jest
Okna PCV
Instalacje ELEKTRYCZNA, WODNA, GAZOWA
Balkon brak
Liczba tarasów 1
Zagosp. działki częściowo zagospodarowana
Ukształtowanie działki płaska
Kształt działki prostokąt
Pokrycie dachu dachówka ceramiczna
Pozwolenie na użytkowanie tak
Stan budynku do wykończenia
Ogrodzenie działki ogrodzona
Rok budowy 2025
Gaz jest
Woda jest
Dojazd droga utwardzona
Otoczenie osiedle
Ogrzewanie podłogowe
Tarasy taras
Prąd jest
Kanalizacja tak
Pomieszczenia
Michał Zgoda

Michał Zgoda

Specjalista ds. gruntów i nowych inwestycji

Napisz wiadomość 8 Ofert

Opis nieruchomości

Nowe osiedle 14 domów w zabudowie bliźniaczej w Przeginie Duchownej. Miejscowość ta położona jest zaledwie 13 km od granicy Krakowa, która łączy tradycyjną zabudowę z łatwym dostępem do miejskiej infrastruktury. Dzięki spokojnej atmosferze i bliskości natury, jest to idealne miejsce do zamieszkania. 

Na sprzedaż domy w zabudowie bliźniaczej o powierzchni:
- powierzchnia użytkowa: 131 m2
- powierzchnie działki: 441- 507m2

 Zalety:

  • ogrzewanie podłogowe
  •  podjazd do budynku wyłożony kostką brukową
  •  działka ogrodzona 
  •  taras z widokiem na ogród 
  •  teren wokół budynku wstępnie uporządkowany i zniwelowany
  •  okolica spokojna, przewaga terenów zielonych
  •  alarm z powiadomieniem jednostki interwencyjnej
  • wykonana instalacja antenowa
Opis stanu deweloperskiego:
  •  budynek wykonany technologią tradycyjną: ściany nośne - POROTHERM 25 cm, ścianki działowe - pustak ceramiczny POROTHERM 11,5 cm
  •  elewacja: ocieplenie - styropian 20 cm + tynk akrylowy
  •  fundamenty betonowe z hydroizolacją i ociepleniem 15 cm
  •  pokrycie: dachówka ceramiczna, okna dachowe FAKRO, rynny PCV
  •  podbitka dachu drewniana
  •  kominy wykonane systemem
  •  okna plastik w kolorze
  •  drzwi wejściowe ocieplane
  •  podłogi: wylewki i izolacje
  •  ściany: tynki maszynowo-gipsowe
  •  poddasze ocieplone: wełna 30 cm, konstrukcja metalowa, płyty gipsowo-kartonowe
  •  zamontowane schody strychowe
  •  barierki metalowe na balkonach
  •  parapety wewnętrzne: kamień naturalny
  •  przyłącz prądu, wody, kanalizacji i gazu wraz z wykonanymi instalacjami w budynku
  •  wentylacja mechaniczna
  •  wykonana instalacja antenowa
  •  kocioł z zamkniętą komorą spalania
  •  ogrzewanie podłogowe
  •  zamontowany zestaw podtynkowy GEBERIT
  •  alarm z powiadomieniem jednostki interwencyjnej
  •  budynek oddany do użytkowania - ODBIÓR TECHNICZNY
  •  bez drzwi wewnętrznych, podłóg, szpachlowania, malowania, białego montażu
Komunikacja: 
  • mpk Kraków- linie autobusowe aglomeracyjne 269, 249
  • Port lotniczy Kraków- Balice, zapewniający dostęp do transportu lotniczego
  • autostrada A4 (E40) oraz IV obwodnica Krakowa w pobliżu
  • PKS oraz liczne linie mikrobusowe zapewniają transport publiczny
Okolica:
  • zalew Kryspinów- 10km
  • Przeginia jest otoczona lasami, które znajdują się w promieniu 2-5 km od miejscowości, oferując liczne ścieżki spacerowe i rowerowe
  • 250m do przystanku autobusowego
  • 500m do Rezerwatu przyrody nieożywionej Kajasówka
W celu uzyskania dodatkowych informacji o tej ofercie, prosimy o kontakt z naszym biurem.
Michał Zgoda
Tel.: +48 793 91 79 79


 

Lokalizacja nieruchomości

Podobne oferty

Nowa oferta

Dom na sprzedaż

Czernichów, Przeginia Duchowna

4 pokoje 0 m2 0,00 zł/m2
Nowa oferta

Specjalista ds. gruntów i nowych inwestycji

Proszę wprowadzić poprawne imię i nazwisko
Proszę wprowadzić poprawny numer telefonu
Proszę wprowadzić poprawny adres e-mail
Proszę zaznaczyć wymagane zgody
Rozwiąż równanie:
25 8
Niepoprawny wynik