Dom na sprzedaż Czernichów, Przeginia Duchowna, Śląska

4 pokoje
104.50 m²
7 846,89 zł/m2
HME-DS-6851

820 000 zł

Dom na sprzedaż
Nowa oferta

Szczegóły oferty

Symbol oferty HME-DS-6851
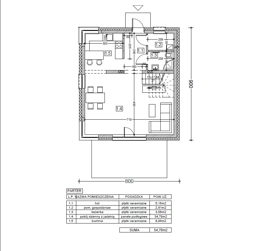
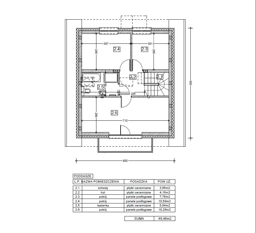
Powierzchnia 104,50 m²
Powierzchnia użytkowa [m2] 104,50 m²
Powierzchnia działki [m2] 524 m²
Liczba pokoi 4
Rodzaj domu wolnostojący
Technologia budowlana pustak ceramiczny
Standard
Liczba pięter w budynku 1
Garaż brak
Okna PCV
Instalacje ELEKTRYCZNA, WODNA, GAZOWA
Balkon jest
Liczba balkonów 1
Liczba tarasów 1
Zagosp. działki częściowo zagospodarowana
Ukształtowanie działki płaska
Kształt działki prostokąt
Pokrycie dachu dachówka ceramiczna
Pozwolenie na użytkowanie tak
Stan budynku do wykończenia
Rok budowy 2024
Gaz jest
Woda jest
Dojazd droga utwardzona
Otoczenie osiedle
Ogrzewanie podłogowe
Tarasy taras
Prąd jest
Kanalizacja tak

Opis nieruchomości

Nowe osiedle 19 domów wolnostojących w Przeginie Duchownej. Miejscowość ta położona jest zaledwie 13 km od granicy Krakowa, która łączy tradycyjną zabudowę z łatwym dostępem do miejskiej infrastruktury. Dzięki spokojnej atmosferze i bliskości natury, jest to idealne miejsce do zamieszkania. 

Na sprzedaż domy wolnostojące o powierzchni:
- powierzchnia użytkowa: 104,5 m2
- powierzchnie działki: 310-726 m2

 Zalety:
  • ogrzewanie podłogowe
  •  podjazd oraz opaski wokół budynku wyłożone kostką brukową
  •  działka ogrodzona powlekaną siatką
  •  taras z widokiem na ogród wyłożony kostką brukową
  •  teren wokół budynku wstępnie uporządkowany i zniwelowany
  •  okolica spokojna, przewaga terenów zielonych
  •  alarm z powiadomieniem jednostki interwencyjnej
  • wykonana instalacja antenowa
Opis stanu deweloperskiego:
  •  budynek wykonany technologią tradycyjną: ściany nośne - POROTHERM 25 cm, ścianki działowe - pustak ceramiczny POROTHERM 11,5 cm
  •  elewacja: ocieplenie - styropian 20 cm + tynk akrylowy
  •  fundamenty betonowe z hydroizolacją i ociepleniem 15 cm
  •  pokrycie: dachówka ceramiczna, okna dachowe FAKRO, rynny PCV
  •  podbitka dachu drewniana
  •  kominy wykonane systemem
  •  okna plastik w kolorze
  •  drzwi wejściowe ocieplane
  •  podłogi: wylewki i izolacje
  •  ściany: tynki maszynowo-gipsowe
  •  poddasze ocieplone: wełna 30 cm, konstrukcja metalowa, płyty gipsowo-kartonowe
  •  zamontowane schody strychowe
  •  barierki metalowe na balkonach
  •  parapety wewnętrzne: kamień naturalny
  •  przyłącz prądu, wody, kanalizacji i gazu wraz z wykonanymi instalacjami w budynku
  •  wentylacja mechaniczna
  •  wykonana instalacja antenowa
  •  kocioł z zamkniętą komorą spalania
  •  ogrzewanie podłogowe
  •  zamontowany zestaw podtynkowy GEBERIT
  •  alarm z powiadomieniem jednostki interwencyjnej
  •  budynek oddany do użytkowania - ODBIÓR TECHNICZNY
  •  bez drzwi wewnętrznych, podłóg, szpachlowania, malowania, białego montażu
Komunikacja: 
  • mpk Kraków- linie autobusowe aglomeracyjne 269, 249
  • Port lotniczy Kraków- Balice, zapewniający dostęp do transportu lotniczego
  • autostrada A4 (E40) oraz IV obwodnica Krakowa w pobliżu
  • PKS oraz liczne linie mikrobusowe zapewniają transport publiczny
Okolica:
  • rezerwat przyrody Kajasówka
  • zalew Kryspinów- 10km
  • Przeginia jest otoczona lasami, które znajdują się w promieniu 2-5 km od miejscowości, oferując liczne ścieżki spacerowe i rowerowe
W celu uzyskania dodatkowych informacji o tej ofercie, prosimy o kontakt z naszym biurem.
Elżbieta Szpiech
Tel.: +48 500 169 041


 

 


 

Lokalizacja nieruchomości

Podobne oferty

Nowa oferta

Dom na sprzedaż

Czernichów, Przeginia Duchowna

5 pokoi 131 m2 6 717,56 zł/m2
Nowa oferta

Doradca Klienta

Proszę wprowadzić poprawne imię i nazwisko
Proszę wprowadzić poprawny numer telefonu
Proszę wprowadzić poprawny adres e-mail
Proszę zaznaczyć wymagane zgody
Rozwiąż równanie:
26 2
Niepoprawny wynik